Situation de l'ouvrage
Le village de Founex se situe au cœur de la région de Terre Sainte, appellation donnée à cette partie privilégiée de la Côte située tout à l’ouest du canton de Vaud entre les rives du lac Léman et à deux pas des montagnes jurassiennes.
Les entrées d’autoroute direction Genève ou Lausanne sont situées à 5 minutes en voiture.
Le projet
Profitant d’une implantation idéale, la Résidence du Bourg se situe au centre du village de Founex, dans un environnement calme et sans nuisances, considéré comme résidentiel et de qualité.
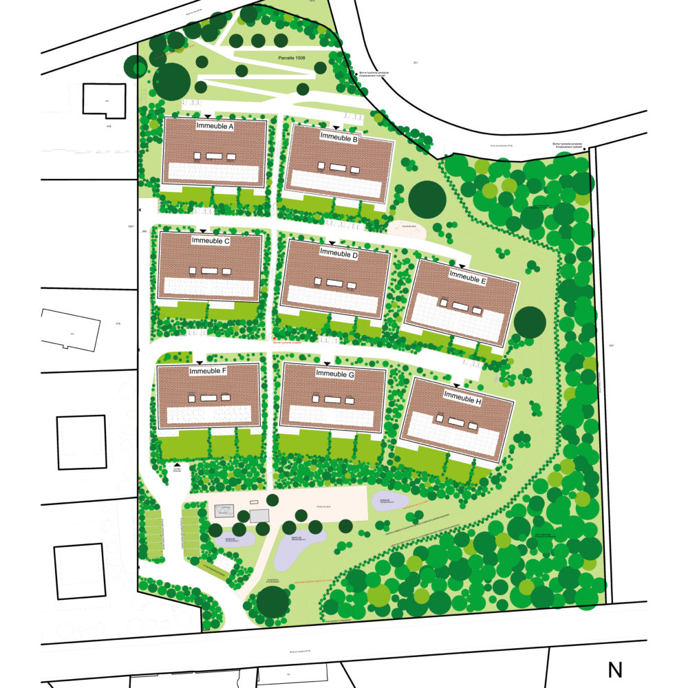
Il s’agit d’une nouvelle réalisation regroupant 8 villas qui disposent de 4 niveaux utilisables, dont les finitions sont au gré des acquéreurs, ainsi qu’un parking souterrain de 16 places.
Chaque villa disposera d’un espace de jardin privatif au rez-de-chaussée, ainsi que de 2 places de parc intérieures dans le parking souterrain qui seront accessibles directement par le sous-sol.









